046-876-5173
  • 営業時間:10:00〜18:00
  • 定休日:水曜日
問い合わせ
物件情報 Estate Listings

港が丘分譲地内 田浦町6丁目 リノベーション中古戸建

価格 2,980万円(税別)
土地面積 164.76㎡
所在地 神奈川県横須賀市田浦町6丁目6-22
建物面積 91.91㎡
交通 JR横須賀線「田浦」駅徒歩12分
京浜急行本線「京急田浦」駅徒歩14分
問い合わせ

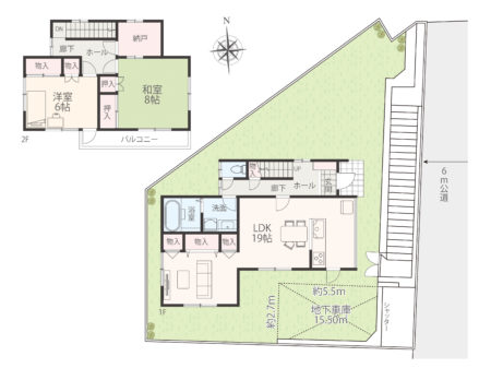
物件概要

所在地 神奈川県横須賀市田浦町6丁目6-22 間取り 2LDK+S
建築年月日 2000年1月 駐車場 1台(シャッター付き地下車庫)
物件区分 1棟限定 建蔽率 40%
敷地・建物権利 所有権 容積率 80%
地目 宅地 接面道路 東側約6M公道に約16M接道
私道負担 なし 接面包囲 なし
都市計画 市街化区域 取引形態 売主
用途地域 第一種低層住居専用地域 仲介手数料 不要
小学校区 長浦小学校 中学校区 田浦中学校
設備 2025年9月リフォーム済
・キッチン交換
・浴室交換
・トイレ交換
・独立洗面台交換
・全室クロス・フローリング張替え
備考 まもりすまい既存住宅保険(2年間)
周辺環境 長浦小学校 徒歩約25分(約2,300M)
田浦中学校 徒歩約13分(約1,000M)
ファミリーマート湘南港が丘店 徒歩約3分(約200M)
港が丘公園 徒歩約2分(約140M)
田浦郵便局 徒歩約10分(約750M) 
京急ストア 京急田浦駅前店 徒歩約13分(約900M)

地図

    CONTACT お問い合わせ

    「分譲住宅について知りたいのですが…」 とお電話ください。

    横須賀スタジオ

    046-876-5173
    受付時間/(水曜定休)
    Web予約はこちらから

    24時間受付予約フォーム

    *は必須項目です

    フォームよりお問合せいただきますと、すぐに返信メールが送信されます。
    数分お待ちいただいても折り返しメールが届かない場合は、お使いのメールサービス、メールソフト、ウィルス対策ソフト等の設定により「迷惑メール」と認識され、メールが届かない場合があります。 その場合は「迷惑メールフォルダ」等をご確認いただくかお使いのサービス、ソフトウェアの設定をご確認ください。
    また、迷惑メールフォルダにも届いていない場合はドメイン指定などされている場合があります。

    お名前
    フリガナ
    電話番号
    郵便番号  (半角英数字・ハイフンなしで入力)
    都道府県
    市区町村以降の住所
    メールアドレス
    お問い合わせ内容
    物件一覧へ戻る