Works 暮らしやすくてちょっとカッコいい家の施工事例

囲まれた土地を活かした吹き抜けと借景の窓がある2階リビングの家

神奈川県逗子市
物件本体価格:3,200万円~3,299万円
延床面積:106.94m2 (32.3坪)
敷地面積:114.67m2 (34.6坪)
  • 表⽰⾦額は2024年時点の価格です。
  • 本体価格には、付帯⼯事や造成⼯事などの
    諸費⽤は含まれていません。
  • ⾦額は全て税抜です。

Tags

担当者が
ポイントを
紹介!

インテリアコーディネーター
本田 志織

丁寧に選び、ゆっくりと育てる住まい

ご夫妻と設計士、私のペースが合う感じで、お悩みの箇所もたくさんありましたが、ゆったりとしたペースでみんなで楽しく打ち合わせを重ねながら家づくりを行いました。見どころのひとつが、使いやすくデザイン性にも優れた玄関。荷物を置くのにも便利なベンチを設置したほか、違う色を組み合わせたウッドブラインドやお月様のような照明、目地が少なく広がりを感じさせる60cm角の大判のタイルなどを採用しています。ウォークスルーのシューズインクローゼットの先に手洗い用の洗面台をつくり、帰宅時の動線も便利です。門柱や植栽、目地にウッドチップを採用したコンクリートの打設など外構まで当社で担当させていただき、室内外をトータルコーディネートしました。

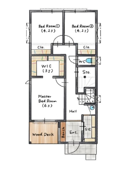
1F

1階は、荷物置き場にも便利な大きなベンチやシューズインクローゼットを備えた玄関に加え、主寝室と2つの個室、階段下には書斎が設置されています。玄関横には主寝室から出入りできるウッドデッキをつくり、採光を確保しました。

2F

三方を住宅に囲まれた立地のため、採光を確保するために2階LDKの住まいに。リビングは勾配天井にして、縦方向にも空間の広がりを演出しました。勾配天井でロフトとつながった、ロフトで過ごす家族ともコミュニケーションが取りやすい間取りになっています。

ロフト

広々としたロフトでは、プロジェクターを設置して映画やライブ映像を楽しむことができます。将来はお子さんの遊び場としても重宝するスペースに。重い荷物の持ち運びにも便利な固定階段で上り下りできるので、収納としても活用できます。

外観

水平ラインを強調したデザイン性の高い外観。駐車スペースとアプローチをゆるやかに分離した外構や、外壁と同じ素材を使った門柱などが一体となった美しい住まいを実現しました。植栽と調和するように、コンクリートの目地にはウッドチップを採用しています。

外観のアクセントにもなっている大きな窓から採光を確保。正面の窓にはオークの無垢床に合わせてオーク材を使ったウッドブラインドを採用しました。

書斎

リモート会議などにも活用する、階段下につくった書斎。壁にはOSB合板を採用してワイルドな雰囲気を演出しました。

リビング

リビングの天井を高くして開放感を創出した、約21帖のゆったりとした2階のLDK。オークの無垢床や現しの梁や柱がぬくもりのある空間を演出しました。右側の固定階段を上ると大きなロフトにつながっています。三方を家に囲まれた敷地ながら、たっぷりの光で明るく気持ち良く暮らせる家が実現しました。

三方を住宅に囲まれた敷地とは思えないほど、明るくてくつろげる空間になっています。

キッチン

キッチンの腰壁はモールテックス仕上げにして、落ち着いた雰囲気の空間を演出しました。

キッチンの横には大容量のパントリーを設置。背面の壁や換気扇の横はタイル貼りに。換気扇のフード下は透明のパネルにして圧迫感をなくしています。タイルや海外製の食洗機を採用など夫人のこだわりを叶えたスペースになりました。

ロフト

階のLDKとつながる広々としたロフト。低い天井によるおこもり感のあるスペースは、趣味空間にもぴったりです。プロジェクターを使って映画を楽しむなど、シアタースペースとしても活用できます。

洗面

モールテックスのカウンターや深い色合いが上品なタイルが目を引く造作の洗面化粧台。タイルはサンプルを多数取り寄せて、お施主様と一緒に選んだもの。カウンターの下に造作棚を取り付けて、タオルなどの収納スペースとして活用。

玄関

靴の脱ぎ履きや買い物帰りの荷物置き場にも便利な、ベンチを取り付けた広々とした玄関。ベンチの色に合わせたウッドブラインドやシンプルで可愛らしい照明、60cm角の大判のタイルも玄関のこだわりポイントです。ブラインドがかかる窓の外側はウッドデッキで、ブラインドを上げれば光が差し込む明るい玄関となっています。

Tags

Studio スタジオ紹介

Contact お問い合わせ

ハウスイズムの家づくりに興味のある方は
「来店予約をしたいのですが…」
お気軽にお問い合わせください

Tel.046-876-5173
受付時間:10:00~18:00

施工エリア

神奈川県 鎌倉市 大和市 横須賀市 三浦市 逗子市 葉山町 横浜市 川崎市 藤沢市 茅ヶ崎市 海老名市 座間市 綾瀬市 平塚市 寒川町 大磯町 二宮町 相模原市(一部エリア外) 秦野市 厚木市 愛川町 南足柄市 小田原市(一部エリア外)
東京都 町田市 世田谷区 目黒区 大田区
上記エリアを中心に施工をしております。
  • 記載エリア外でも対応可能な場合がございますので、お問い合わせください。
  • 施工エリアは各スタジオから車で1時間圏内でのご対応となります。
  • 相模原市の一部地域や箱根町は施工エリア外になります。