Works 暮らしやすくてちょっとカッコいい家の施工事例

空と光に包まれるLDK 自然を感じながら最高にくつろげる家

川崎市 A様
物件本体価格:3,500万円
延床面積:136.63㎡
敷地面積:290.36㎡
  • 表⽰⾦額は2024年時点の価格です。
  • 本体価格には、付帯⼯事や造成⼯事などの
    諸費⽤は含まれていません。
  • ⾦額は全て税抜です。

Tags

担当者が
ポイントを
紹介!

インテリアコーディネーター
梅田 真帆

四季を味わえる、アウトドアな暮らし

ハウスイズムでは木のぬくもりを活かした住まいが多いのですが、A様邸ではご夫妻の希望にそって極力木の存在感を消し、モノトーンを意識したシックなインテリアをご提案しました。様々なご要望の中でも、ペンダントライトやマリンランプなどの空間を彩る多彩な照明もA様邸のこだわりのひとつ。また必要な場所に設けた収納も特徴です。

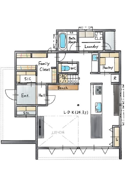
1F

8帖の吹き抜けをつくった明るくゆとりあるLDKを中心に空間を構成。リビングとテラスがフルオープンサッシでつながることで、頻繁に食事やバーベキューなどを行うアウトドアリビングとして使うテラスと行き来がしやすく、気軽に四季の移ろいが楽しめる家になりました。

2F

セカンドリビングとして使うホールのほかに、主寝室と子ども部屋を配置したプライベートフロア。ホールには今後プロジェクターを設置して映画などを楽しめるようにする予定です。

リビング

吹き抜けの大きな窓からも光が差し込みます。日中は照明が不要なほど明るいLDKです。

ベンチ

リビングの一角に設けた造作のベンチ。下は収納になっています。

キッチン

上質さが際立つダイニングキッチン。ダイニングテーブルは造作です。

玄関

キャンプなどに出かける際も、シューズインクローゼットや外部収納などにしまってあるキャンプ道具をすぐに車に積むことができて便利です。

テラス

バーベキューを楽しんだり、仕事の打ち合わせで使ったりするなど様々なシーンで活用ができるテラスです。

Tags

Studio スタジオ紹介

Contact お問い合わせ

ハウスイズムの家づくりに興味のある方は
「来店予約をしたいのですが…」
お気軽にお問い合わせください

Tel.046-876-5173
受付時間:10:00~18:00

施工エリア

神奈川県 鎌倉市 大和市 横須賀市 三浦市 逗子市 葉山町 横浜市 川崎市 藤沢市 茅ヶ崎市 海老名市 座間市 綾瀬市 平塚市 寒川町 大磯町 二宮町 相模原市(一部エリア外) 秦野市 厚木市 愛川町 南足柄市 小田原市(一部エリア外)
東京都 町田市 世田谷区 目黒区 大田区
上記エリアを中心に施工をしております。
  • 記載エリア外でも対応可能な場合がございますので、お問い合わせください。
  • 施工エリアは各スタジオから車で1時間圏内でのご対応となります。
  • 相模原市の一部地域や箱根町は施工エリア外になります。